
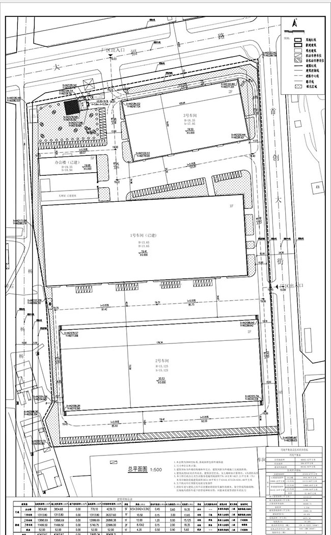
廊坊大厂开发区高台双边库房:
园区总占地100亩,办公住宿3854.68平米,一号库库房13113.8平米,二号库房13890.69平米。
未建设库房面积7000平米(3号库)
库房回车距离34米,库高10米。
6 亩
60 亩
50 亩
20 亩
103 亩
63 亩
25 亩
103 亩
5000 平米
800 平米